2-х ком квартира Ентузіастів вул., 15 (№ 213-284-302)
Ціна: 51 000 $

Адреса: Энтузиастов ул., 15, Київ, Дніпровський, м. Лівобережна
Характеристики
| Ціна: | 51 000 $ |
|---|---|
| № об'єкта: | 213-284-302 |
| Кімнат: | 2 |
| Поверх: | 8 / 9 |
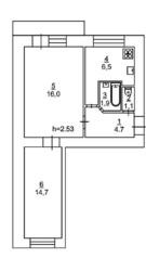
| Площа: | 47 / 29 / 7 м2 |
| Тип стін: | Цегла |
| Тип опалення: | центр |
| Тип об'єкта: | Квартира |
| Безготівковий розрахунок: | - |
Опис
Ентузіастів вул., 15
Продам 2-кімнатну квартиру | 2 кімн. | 8/9 пов. | 47/29 м?
Лівобережна (15 хв. пішки), Дніпровський район, Русанівка, Ентузіастів вул., 15 2 Кімнатна Квартира Лівобережна Русанівка Ертузіастів 15
Продається світла та затишна квартира на Русанівці
метро Лівобережна 12 хвилин пішки
вул. Ентузіастів, 15, 8 поверх із 9.
47 м? тепла і простору: дві окремі кімнати (29 м?), кухня 7 м?, роздільний санвузол. Це квартира з настроєм.
Вікна великої кімнати виходять на Русанівський канал — ранкова кава з видом на воду та дерева стане вашою маленькою традицією. Друга кімната і кухня — у тихий зелений двір, де спокійно й затишно в будь-яку пору року. Русанівка — це про життя серед природи: поруч Дніпро, набережна для прогулянок і пробіжок, свіже повітря, багато зелені. І водночас — до метро Лівобережна всього кілька хвилин. Квартира в житловому стані — можна заїхати і поступово створювати інтер’єр під себе.
Централізоване опалення та вода.
Газова плита — особлива перевага сьогодні: навіть у періоди відключень світла ви з теплим чаєм і гарячою вечерею. Це не просто квадратні метри.
Це можливість жити біля води, у зеленому районі, в одному з найкомфортніших куточків Києва.
Цегляна
Чеський проект
1967 рік побудови













