Квартира жк Озерний (№ 212-908-038)
Ціна: 23 000 $

Адреса: Озерна, Вінниця, Вінницька, Передмістя, Зарванці
Характеристики
| Ціна: | 23 000 $ |
|---|---|
| № об'єкта: | 212-908-038 |
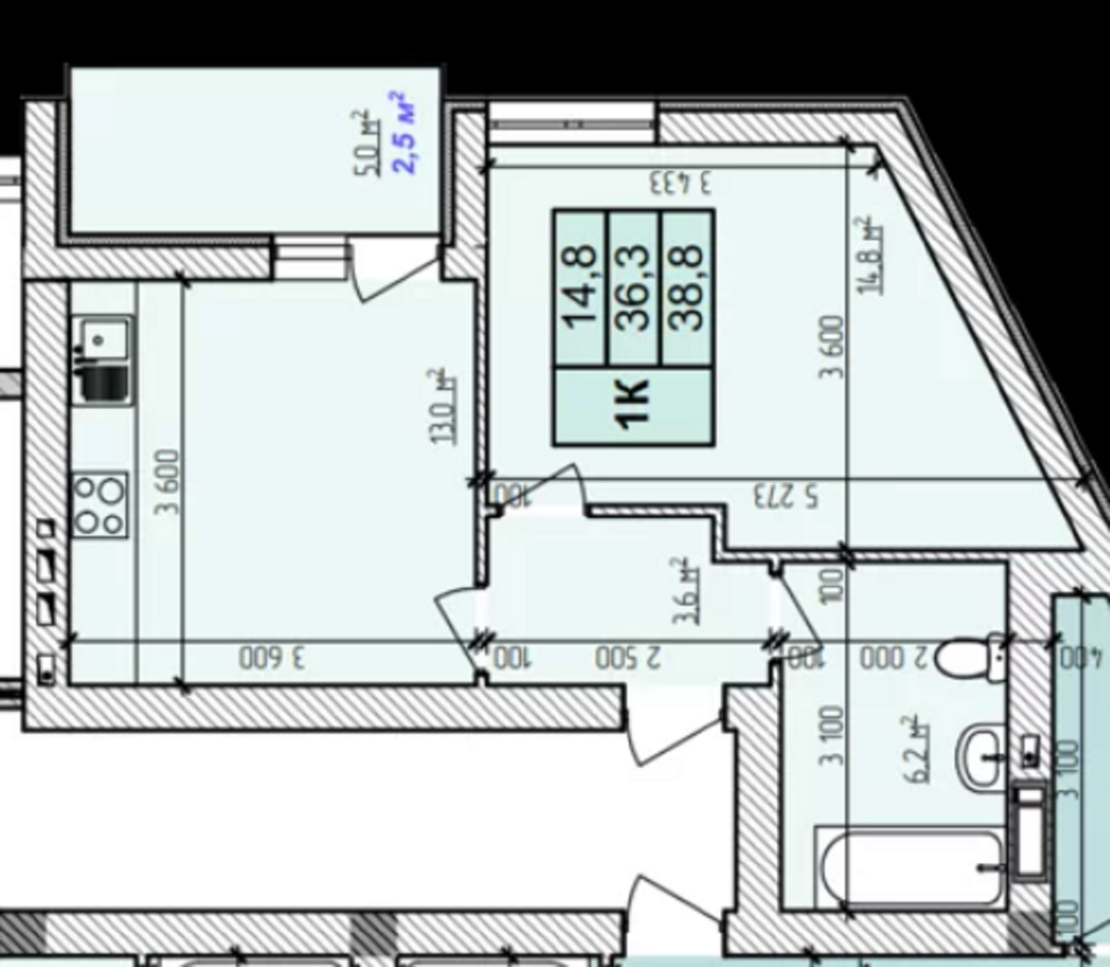
| Кімнат: | 1 |
| Поверх: | 7 / 9 |
| Площа: | 39 / 15 / 13 м2 |
| Санвузол: | 1 сумісний |
| Балкон: | балкон |
| Тип стін: | Цегла |
| Тип опалення: | АГВ |
| Тип об'єкта: | Квартира |
| Безготівковий розрахунок: | - |
Опис
Суцільний спокій природи по руч з містом.
На території комплексу передбачено:
- комерційні приміщення;
- відкриті гостьові паркувальні зони;
- гаражні та кладові приміщення;
- дитячі та спортивні майданчики;
- зелені зони та місця для відпочинку.
В пішій доступні від комплексу є ліс та озеро.










