Продається об'єкт Київ, Дарницький, Урлівська, 5 (№ 24-100-252)
Ціна: 99 000 $

Характеристики
| Ціна: | 99 000 $ |
|---|---|
| № об'єкта: | 24-100-252 |
| Поверх: | 1 / 9 |
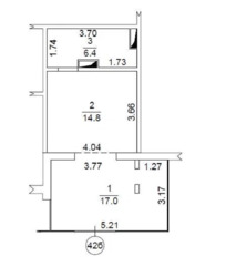
| Площа: | 38 м2 |
| Кількість приміщень: | |
| Корисна площа: |
Адреса: Київ, Дарницький, Урлівська, 5
Продам прим. з орендарем! Окупність 9 років! вул.Урлівська, 5, Власник! Дарницький район, вул. Урлівська, 5 (Позняки, Осокорки). Прохідне та дуже жваве місце розположення - 200 людей на годину: - найбільш густо-населений район столиці; - зупинка громадського транспорту відразу біля приміщення. Продам фасадне торгове приміщення з ОРЕНДАРЕМ (готовий бізнес) ОКУПНІСТЬ якого ДО 9 р.: - Орендар мережа Розливного крафтового пива 'Дудляр' - Орендують вже 2 роки приміщення; - Нещодавно перепідписали договір ще на 3 роки: 1-й рік - 32000 грн 2-й рік - 35200 грн 3-й рік - 38720 грн Про приміщення: - 38,20 метрів (БТІ); - Заведено 12 кВт; - Свої лічильники на воду (хол. і гар.) та електрику; - Готовий повний пакет документів (МБУ, д1, д2);Ціна продажу - 99 000$ Податки оплачу. Телефонуйте за більш детальною інформацією..
Відстань до найближчого міста: У місті;
Розташування: Фасадне приміщення;
Тип обєкта: Нежитлове приміщення у житловому фонді;
Рік побудови u002F здачі: 1990 - 2000;
Cанвузол: Так;
Опалення: Централізоване;
Ремонт: Так;
Меблювання: Так;
Комунікації: Асфальтована дорога, Центральна каналізація, Електрика, Вивіз відходів, Каналізація септик, Центральний водопровід;
Інфраструктура (до 500 метрів): Житловий масив, Метро, Навчальні заклади, Транспортна розвязка;
Ландшафт (до 1 км.): Парк, Річка;












