Головна >> Оренда комерційної та торгівельної нерухомості >> Ріелтор Тетяна Педоренко >> Об'єкт №15117970
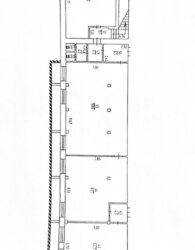
Здається комерційне приміщення на вул. Замостянська 1, площа 210 кв.м (№ 15-117-970)
Ціна: 30 000 грн.

Характеристики
| Ціна: | 30 000 грн. |
|---|---|
| № об'єкта: | 15-117-970 |
| Поверх: | -1 / 5 |
| Площа: | 210 м2 |
| Потужність кВт: |
Адреса: Вінницька, Вінниця, Замостянський, Ближнє Замостя, Замостянська, 1
Оренда приміщення вул. Замостянська, 1
210 м² ідеально для офісу, спортклубу, дитячих розваг, навчання чи сфери послуг
Зручна локація торговий комплекс, активний пішохідний і транспортний трафік
Цокольний поверх безпечно, комфортно, хороший доступ
Чисте приміщення з окремим входом
Поруч зупинки, магазини, офіси
Готове до роботи
Телефонуйте для перегляду!

















